Somerset Road, All England Club, Wimbledon

FMDC were involved in the design of the new indoor tennis centre for the All England Lawn Tennis Club.
Working alongside Hopkins Architects to deliver this magnificent facility, FMDC were involved from RIBA Stage 3 through to project completion. The facility was designed to be used not only by the club members but also for use during the Wimbledon Championships.

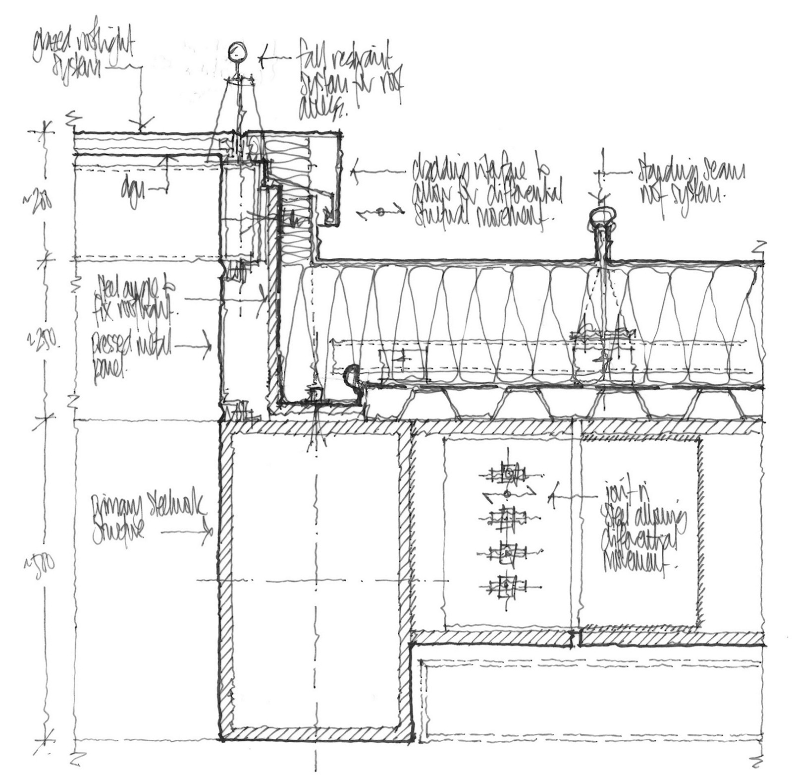
Our scope included involvement in the design of the double curved roof, using a standing seam roofing system in the club colours, glazed rooflights between the courts to provide daylight.

Stick system curtain walling in both proprietary aluminium and timber framed systems to the entrance areas and Member’s bar and lounges.

Timber cladding to both SFS and insulated metal panel substrates to the main body of the façade, with several integrated opening vents to provide natural ventilation through the tennis courts and precast concrete spandrel panels.

One of the key challenges was the interface detailing and specification of the various cladding elements. FMDC assisted Hopkins with the design intent detailing and performance specification of the facades. Laterally FMDC carried out site visits during construction to inspect the installed façade works.

Willmott Dixon was the main contractor for the scheme, and Kaiser delivered the envelope package, including the roof and roof lights.

 

Photograph copyright Peter Landgdown and Janie Airey