Axtell House

Axtell House is an existing building, located at 23-24 Warwick Street, London.
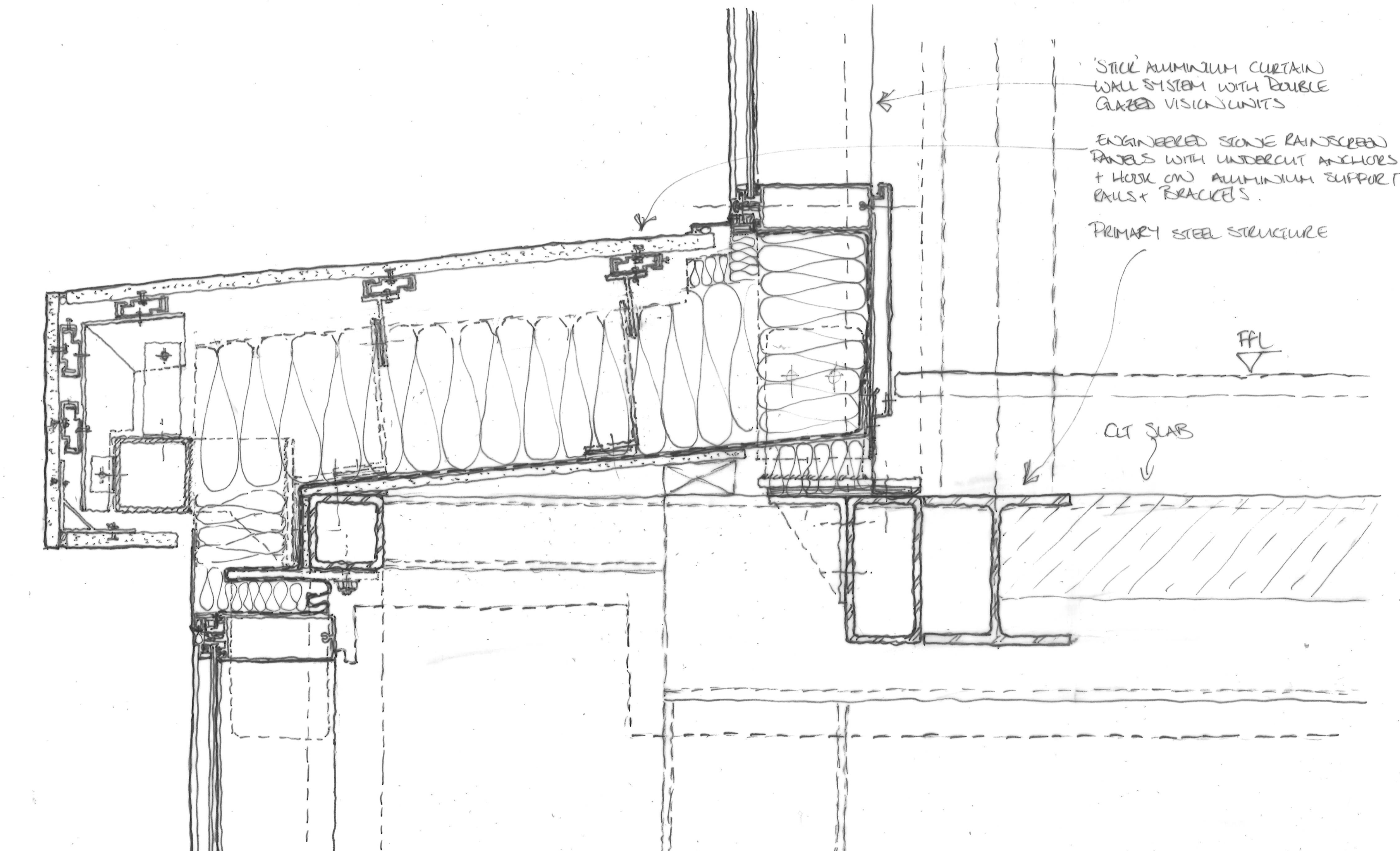
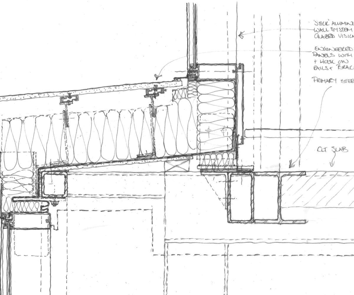
The building, designed by Darling Associates Architects Ltd for E&A Property Investment Company, involved the demolition of the existing 4th, 5th and 6th floors, which were replaced with a 3 storey steel frame structure with CLT slabs, providing new office accommodation, avoiding the need to reinforce the existing foundations or superstructure.

The lower floors of the development were refurbished, with stone façade elements being retained and windows replaced with a proprietary thermally broken steel framed system to match the existing windows.

FMDC were involved in a post contract role for Red Construction through to completion.

Axtell House achieved BREEAM Very Good Certification.

 

Photographs by Peter Landers.