81 Newgate

Panorama St Pauls aka 81 Newgate Street is a redeveloped office building in the City of London,  which is has undergone heavy refurbishment, designed by KPF.  The original outdated 1980’s building is the former BT Headquarters and sits opposite St Pauls tube station.
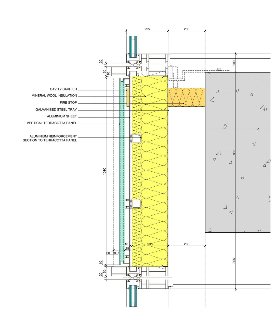
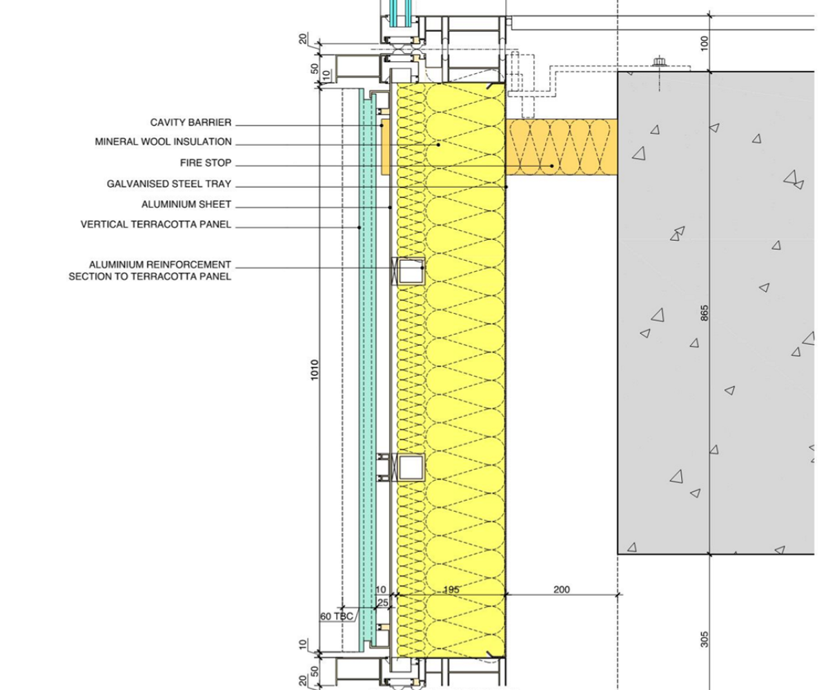
The original hand-set stone elevations have been carefully removed and then reused as new stone-facing to precast façade panels, with scope delivered by Grants Precast. The openings formed by the beam-and-post precast concrete arrangement, were infilled with unitised curtain walling, designed and manufactured by Focchi .

Vision glazing and glazed terracotta are other key façade materials incorporated in the new, remodelled unitised curtain walling.  The original structure was extensively retained in the new design. New floors were added to the top of the building and the South-West façade was modelled to improve key views of St Pauls, whilst delivering additional area for the developer Pella.

FMDC were employed as façade consultants, with initial engagement in Stage 3, which has progressed to a novated role with Mace, until practical completion.

Sustainability was a key driver for the project, with the extensive use of opening vents in the elevations to provide ventilation to the floorplates, the stone reuse, and the use of GGBS cement replacement in the precast panels.

Photograph copyright Dirk Lindner and FMDC.